HOME     www.tegels-uit-rotterdam.com

 

 

ROTTERDAMER UND UTRECHTER FLIESEN DES
18. JAHRHUNDERTS
IM SOMMERAPPARTEMENT
DER UNESCO-WELTERBESTÄTTE

SCHLOSS AUGUSTUSBURG IN BRÜHL

 

 01

Blick von Osten auf Schloss Augustusburg

 

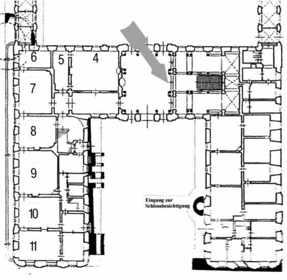
 02
Grundriss Erdgeschoss

Der Pfeil weist auf das berühmte, von Balthasar Neumann entworfene, Treppenhaus.
4        Sommerspeisesaal
5        Anrichte
6        Nepomukkapelle (ohne Fliesen)
7        Erstes Vorzimmer
8        Zweites Vorzimmer
9        Audienzsaal
10      Paradeschlafzimmer
11       Kabinett

 

 03

Blick ins Treppenhaus

 

Der Bauherr
Clemens August I Ferdinand Maria Hyazinth von Bayern (* 16. August 1700 in Brüssel - + 6. Februar 1761 auf Schloss Philipsburg in Ehrenbreitstein) war vierter Sohn und fünftes Kind des Kurfürsten Max Emanuel von Bayern und dessen zweiter Ehefrau Therese Kunigunde Sobieska.
Er war von 1723 bis 1761 Erzbischof von Köln, Kurfürst des Heiligen Römischen Reiches, Landesherr des zugehörigen Erzstifts und Legatus natus des Heiligen Apostolischen Stuhls zu Rom.
Außerdem war er Hochmeister des Deutschen Ordens, Fürstbischof von Regensburg*, Münster, Osnabrück, Paderborn und Hildesheim sowie Inhaber anderer kirchlicher Würden.

*  1722 verzichtete Kurfürst Clemens August zugunsten seines jüngeren Bruders auf Regensburg, was Voraussetzung für seine Wahl zum Koadjutor in Köln war.

Sommerappartement des Schlosses
Der größte Teil des im Erdgeschoss des Schlosses liegenden Sommerappartements erstreckt sich auf den Südflügel. Es diente dem Kurfürsten Clemens August vor allem in der Zeit von 1740 bis 1745 für das Empfangszeremoniell, da sich das eigentliche Staatsappartement noch im Bau befand. Fliesen mit blauer Bemalung auf weißem Grund suggerieren Kühle. In den Vorzimmern, im Audienzsaal und im Paradeschlafzimmer wurden die Sockelzonen und die Fensternischen mit Fliesen bekleidet. Die Wände des Sommerspeisesaals, der Anrichte und des Kabinetts erhielten eine Fliesenbekleidung vom Boden bis zur Decke. Im Gegensatz zu den Fliesen in Schloss Falkenlust handelt es sich hier um Fliesen, die nicht nach Vorlagen vom Hofe des Kurfürsten gemalt wurden.

Dekorfliesen
In den Räumen 4, 5 und 7-11 wurden drei verschiedene Rotterdamer weiß-blaue Dekorfliesen und uni weiße Fliesen, dazu im zweiten Vorzimmer (Raum 8) Utrechter Landschaftsfliesen verarbeitet. Die Dekore sind im Rotterdamer Musterbuch als Nummern 32, 61 und 90 enthalten. Die Nummer 61 ist Vorlage für eine Fliese mit manganfarbener Bemalung.

               04
GAR 3195-32                   GAR 3195-61                  GAR 3195-90
>Kievitseitjes<               >Rozenveren<                >Violieren<

 

Sommerspeisesaal (Raum 4)
In die Zeit um 1740 datiert die Raumgestaltung im Corps de Logis, Voraussetzung für die von François Cuvilliés geplante neue Raumfolge für das Empfangs- und Regierungszeremoniell. Hierfür musste das Treppenhaus an der Nordseite der Durchfahrt angeordnet und der vorhandenen Bausubstanz angepasst werden. Für diese Planung gewann Clemens August den namhaften Baumeister Balthasar Neumann. Dieser weilte - soweit bekannt - zum ersten Mal 1740 in Brühl. Der späteste fassbare Besuch Neumanns in Brühl ist für 1745 bezeugt. Die Ausführung der Entwürfe Neumanns lag in Händen des von ihm geschätzten Michael Leveilly.
Im Bereich des heutigen Sommerspeisesaals und der Anrichte befand sich bis zum Bau des neuen repräsentativen Treppenhauses das alte Treppenhaus.
Zu fürstlichen Diners stand spätestens seit Mitte der 1740er Jahre der mit seinen weiß-blauen Fliesendekorationen prunkende Sommerspeisesaal zur Verfügung.
Die Wände des Sommerspeisesaals sind vollständig mit Dekor- und Bildfliesen bekleidet. Im Muster wechseln rein weiße und floral blau ornamentierte Fliesen. Hauptmotive bilden Genreszenen mit Trictrac- und Kartenspielern sowie tanzende Bauern, die mit lockerem Pinsel in Blau auf Weiß gemalt sind. Vasen mit hohen Blumengestecken und Figuren aus der Commedia dell'Arte wie Colombina (Columbine) und Arlecchino (Harlekin) formieren sich zu äußeren und inneren Rahmungen.
Als Dekorfliesen wurden >Violieren< im Wechsel mit uni weißen Fliesen und >Kievitseitjes< als Rahmung der Fensternischen verarbeitet.
Die Dekoration zählt zu den originellsten der Zeit.
Leider wurden bisher keine Dokumente zu Bestellungen, Lieferungen und / oder Kosten gefunden.
Als Herstellungsort der Fliesen kann Rotterdam angenommen werden, da Durchstaubschablonen für Darstellungen in den Medaillons der Blumenvasentableaus sich im Gemeentearchief Rotterdam befinden.
Eine Zuschreibung an die Fayencewerkstatt der Familie Aalmis kann auch wegen der Ähnlichkeit der Blumenvasentableaus mit dem Hauszeichen der Werkstatt Aalmis und Verwendung graphischer Vorlagen für Details der Blumenvasentableaus im Sommerspeisesaal erfolgen. Die Dekorfliesen der Art >Violieren< und >Kievitseitjes< sind im Rotterdamer Musterbuch (Gemeentearchief Rotterdam 3195) als Blätter 90 und 32 abgebildet.

 

 05

Raumecke Westwand-Nordwand

 

 06

Raumecke Nordwand – Ostwand

 

 07

Raumecke Ostwand -Südwand

 

 08

Raumecke Südwand - Westwand

 

 

Anrichte (Raum 5)
>Violieren< sind in diesem Raum diagonal angesetzt. Vier Fliesen ergeben jeweils das Zentralmotiv. >Kievitseitjes< bilden die Rahmungen.

 09

Blick in die Anrichte (Raum 5)

 

 10

Blick in die Enfilade von Raum 7 (Erstes Vorzimmer) zu Raum 11 (Kabinett)

 

 

Das erste Vorzimmer (Raum 7)
Ein Fayenceofen ist das Hauptausstattungsstück dieses Zimmers. Es ist einer von drei Fayenceöfen, die Kurfürst Clemens August nach Entwürfen von François Cuvilliés in München anfertigen ließ. Die Öfen wurden 1741 nach Brühl geliefert. Sie konnten von angrenzenden Räumen befeuert werden.

 11

Bayerischer Fayenceofen

 

 12

Der Zeitgott Saturn mit Stundenglas und Weltkugel ist das markanteste Motiv des weiß glasierten und vergoldeten Prunkofens. Auf der Weltkugel kniet ein Putto und deutet an, das alles Irdische vergänglich ist.

 

 13

Dekorfliesen der Art >Rozenveren< bilden im Wechsel mit uni weißen Fayencefliesen die keramischen Wandbekleidungen von Ofennische‚ Sockelbereichen und Fensterwand mit Stürzen.

 

 

Das zweite Vorzimmer (Raum 8)
Prunkstück der Raumausstattung ist ein zweiter bayerischer Fayenceofen als Gegenstück zu dem im ersten Vorzimmer. Dieser Ofen wurde ebenfalls 1741 nach Brühl geliefert.

 14

 15

Eine Frau hält einen Schild in ihrer Linken mit der Aufschrift ‚ELECTOR SECVRVS VBIQUE SPIRAT’ (‚Der Fürst lebt überall sorglos’).
Hinter dem Ofen sieht man Utrechter Fliesen der Art >Landschap op ’t land< mit dem Eckmotiv >Spin<.

 

 16

Eine vergoldete Portraitbüste Clemens Augusts bekrönt den Fayenceofen.
Im Fliesenfeld der Utrechter Fliesen erkennt man rechts eine unsachgemäße Beiarbeit mit Dekorfliesen der Art >Violieren< und sogar eine Fliese von einem Blumenvasentableau aus dem Sommerspeisesaal.

 

 17

Fliesen der Art >Landschap op ’t land< mit dem Eckmotiv >Spin< links neben dem Fayenceofen. In Utrecht ist diese Dekorart durch datierte Fliesen für den Zeitraum von 1719 bis 1781 nachgewiesen.

 

 18

Fliesen der Art >Kievitseitjes< wurden im Wechsel mit uni weißen Fayencefliesen in den Sockel- und Fensterzonen diagonal angesetzt.

 

 

Der Audienzsaal (Raum 9)
Blickfang in diesem Raum ist an der Nordwand ein Ganzfigurenportrait aus der Werkstatt Georg Desmarées (um 1746). Es stellt Clemens August im Kurmantel mit einem Pagen dar.
Die Fliesenbekleidung der Sockel- und Fensterbereiche wurde aus Dekorfliesen der Art >Kievitseitjes< im Wechsel mit uni weißen Fayencefliesen erbracht. Als neue Spielart der Dekoration sind im Audienzsaal jeweils acht Dekorfliesen in diagonaler Anordnung zu einem Muster zusammengefügt.

 19

 20

 

 

Das Paradeschlafzimmer (Raum 10)
Dieses Zimmer stand nicht nur als Schauraum für hochgestellte Gäste bereit, es diente dem Kurfürsten vor allem als Schlaf- und Andachtsraum. Das geht aus einem Inventarverzeichnis von 1761 hervor.

 21

Die Fliesenbekleidung der Sockel- und Fensterbereiche entspricht der Dekorationsart im ersten Vorzimmer (Raum 7). Dekorfliesen der Art >Rozenveren<, zu Viererblöcken zusammengefügt, bilden im Wechsel mit uni weißen Fayencefliesen die keramischen Wandbekleidungen.

 

    
22                                                                                23

Das Fliesenmuster wurde auf zwei sogenannten ‚Tapetentüren’ als Bemalung weitergeführt.
Kurfürst Clemens August konnte über diese Tapetentüren Bedienstete aus untergeordneten Räumen zu sich bitten.

 

 24

Detailbereiche der Fensterwand

 

 

Das Kabinett (Raum 11)
Dieser Raum ist wie Sommerspeisesaal (Raum 4) und Anrichte (Raum 5) vollständig bis zum Stuck im Deckenansatz mit Fliesen ausgeschmückt. Hier sind Dekorfliesen >Kievitseitjes< und >Violieren< jeweils zu Viererblöcken zusammengefügt diagonal angesetzt. Senkrecht bzw. waagerecht angesetzte >Kievitseitjes< rahmen in einer Breite von einer Fliese die Wandflächen.

 25

Teilbereich der Westwand

 

 26

Teilbereich der Nordwand

 

 27

Georg Desmarées: Clemens August als Hochmeister des Deutschen Ordens, 1746

 

 28

Ein Blick von Raum 11 (Kabinett) zurück zu Raum 7 (Erstes Vorzimmer)

 

Zusammenfassung und Würdigung
Wertvolle Bestandteile der Innendekoration des Sommerappartements von Schloss Augustusburg waren und sind Wandbekleidungen aus niederländischen Fayencefliesen. Sie finden weltweit große Beachtung bei Wissenschaftlern und Freunden historischer keramischer Fliesen. Blaue Bemalung auf weißem Grund verleiht den Räumen angenehme Kühle. Weiß und Blau sind die Farben des Geschlechts der Wittelsbacher, dem Kurfürst Clemens August angehörte. Auch aus diesem Grund fand Clemens August Gefallen an den niederländischen Fliesen.
Es war vor allem aber die optische Nähe zu Chinaporzellan. So wurden niederländische Fliesen in Bauamtsrechnungen Augustusburg / Kurköln ‚porcellaine plätgen’ genannt.
Als Bestandteil der wertvollen Raumausstattungen im Sommerappartement fanden die Fliesenbekleidungen Bewunderung selbst bei höchsten Gästen am Hofe Clemens Augusts. Sie finden auch heute noch Bewunderer bei offiziellen Anlässen und Schlossführungen.

 

 

Bitte öffnen Sie auch meine Dokumentationen

Rotterdamer Blumenstücke im Sommerspeisesaal
der UNESCO Welterbestätte Schloss Augustusburg in Brühl

Rotterdamer Genretableaus im Sommerspeisesaal
der UNESCO Welterbestätte Schloss Augustusburg in Brühl

Rotterdamer Commedia dell’arte-Tableaus im Sommerspeisesaal
Der UNESCO Welterbestätte Schloss Augustusburg in Brühl

 

Literatur
Edmund Renard, Schloss Brühl. Die kurkölnische Sommerresidenz Augustusburg, bearbeitet von Franz Graf Wolff Metternich unter Mitwirkung von Wilhelm Dernette, Berlin 1934

Katalog,  Kurfürst Clemens August. Landesherr und Mäzen des 18. Jahrhunderts. Katalog der Ausstellung in Schloss Augustusburg zu Brühl, Köln 1961

Wilfried Hansmann / Wilhelm Joliet, Graphische Vorlagen und Durchstaubschablonen für die Fliesen des Sommerspeisesaals von Schloss Augustusburg in Brühl.
In: Jahrbuch der Rheinischen Denkmalpflege 33, Köln-Kevelaer 1989

Wilfried Hansmann / Wilhelm Joliet,  Neu gefundene Vorlagen für ein Fliesenbild im Sommerspeisesaal von Schloss Augustusburg in Brühl.
In: Jahrbuch der Rheinischen Denkmalpflege 34, Köln-Kevelaer 1992

Wilfried Hansmann, Schloss Augustusburg in Brühl - Beiträge zu den Bau- und Kunstdenkmälern im Rheinland, Band 36, Teil 1 -
Landschaftsverband Rheinland - Rheinisches Amt für Denkmalpflege, Pulheim, 2002

 

Links
http://www.schlossbruehl.de
http://www.denkmalpflege.lvr.de
http://www.stadsarchief.rotterdam.nl